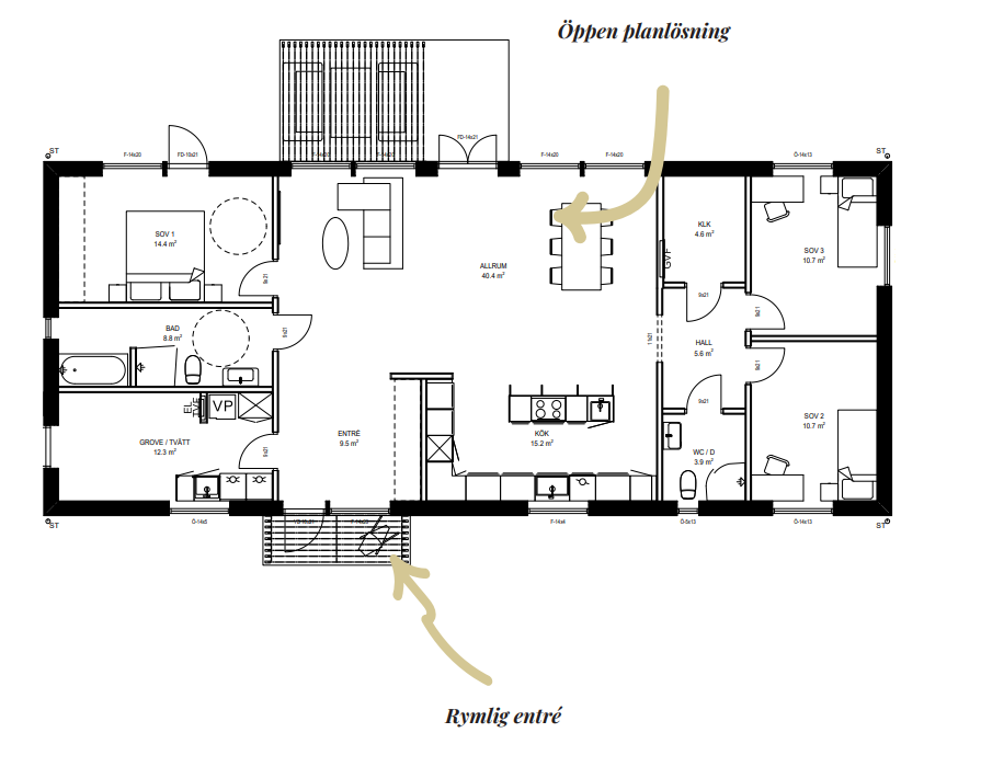
Hinata är ett ljust och välkomnande enplanshus där sociala ytor och praktiska lösningar möts i perfekt balans.
Med sitt öppna vardagsrum på över 40 m², i direkt anslutning till kök och matplats, skapas en naturlig samlingspunkt för hela familjen.
Huset rymmer tre sovrum, två badrum, separat tvätt/groventré samt gott om förvaring. Den genomtänkta planlösningen gör Hinata lika funktionellt för barnfamiljen som för paret som vill ha ett rymligt och flexibelt hem.
Stora fönsterpartier binder samman inne och ute, medan den generösa terrassen blir en plats för avkoppling året runt
Typ
1 planshus
Boyta
141 m2
Badrum
2 st
Kök
1 st

Prata med en husrådgivare
Vi hjälper dig hela vägen – från idé till färdigt hus. Vi återkommer inom 24h.
Liknande referenshus

Inspireras av ett hem som redan byggts och se hur planlösning, stil och vardagsfunktion kan komma till liv.
- 1 planshus
- 146 m2

Inspireras av ett hem som redan byggts och se hur planlösning, stil och vardagsfunktion kan komma till liv.
- 1 planshus
- 149 m2

Inspireras av ett hem som redan byggts och se hur planlösning, stil och vardagsfunktion kan komma till liv.
- 1 planshus
- 164 m2




