Villa Kvadrat
Villa Kvadrat
Villa Kvadrat är en ljus villa i två plan med gott om utrymme för hela familjen.
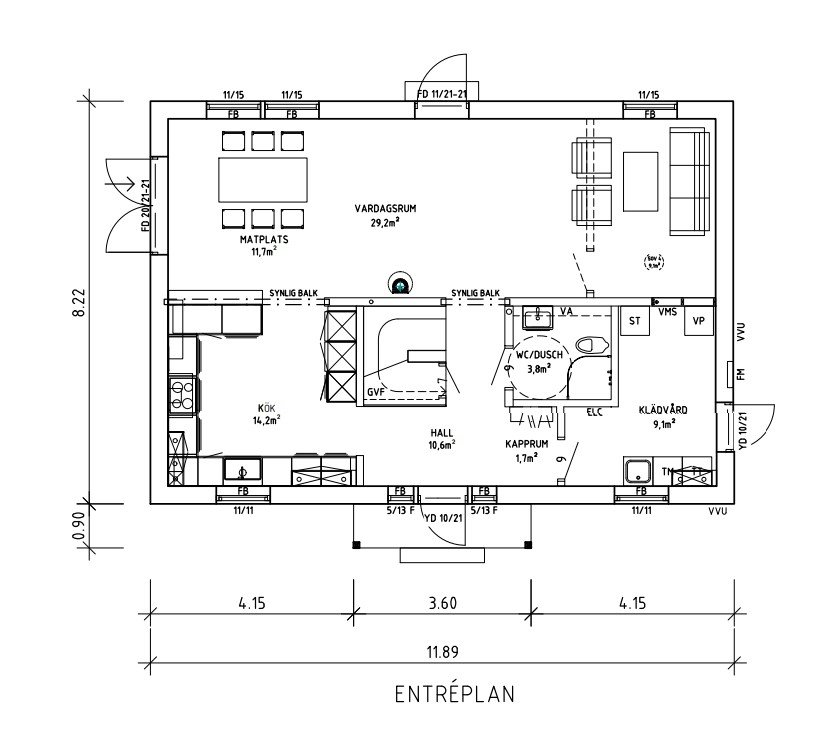
Här kliver du in i en luftig entrén med fri sikt igenom huset till baksidan. Ett stort och rymligt kök som sammanfogas med matplats och vardagsrum i öppen planlösning. Stora ytor för familj och vänner. Groventré med klädvård och förvaring samt ett badrum på nedre plan. Trappen leder upp till det mer privata våningsplanet där varje familjemedlem får sitt egna sovrum. Samt gott om plats för umgänge i allrummet eller plats för hemmakontor om så önskas. Växer familjen eller av annan anledning önskas ett till rum går allrummet på övre plan enkelt att göra om till sovrum.
Perfekt hus som inte begränsar insidan men tar liten byggyta av tomten.
Bygg Online
Vill du veta vad din husdröm kostar, hör av dig till ossKontakta oss
Perfekt när du vill ha mycket hus på liten byggyta
Villa Kvadrat är en ljus villa i två plan med gott om utrymme för hela familjen.
Här kliver du in i en luftig entrén med fri sikt igenom huset till baksidan. Ett stort och rymligt kök som sammanfogas med matplats och vardagsrum i öppen planlösning. Stora ytor för familj och vänner. Groventré med klädvård och förvaring samt ett badrum på nedre plan. Trappen leder upp till det mer privata våningsplanet där varje familjemedlem får sitt egna sovrum. Samt gott om plats för umgänge i allrummet eller plats för hemmakontor om så önskas. Växer familjen eller av annan anledning önskas ett till rum går allrummet på övre plan enkelt att göra om till sovrum.
Perfekt hus som inte begränsar insidan men tar liten byggyta av tomten.
Bygg Online
Vill du veta vad din husdröm kostar, hör av dig till ossKontakta oss
Typ
2-planshus
Sovrum
3
Badrum
2
Boyta
168 m2
Byggyta
101 m2

Planlösning


Takvarianter & uttryck

Klassiskt sadeltak
Med ett klassiskt sadeltak blir stilen traditionell – en känsla som förstärks av spröjs, stående panel och vita knutar. Mångas ideal, som passar i nästan alla miljöer.

Modernt pulpettak
Med flacka pulpettak och dova kulörer blir intrycket plötsligt ett helt annat – ett hus med attityd för ett färgstarkt liv.

Sarg tak
Med ett brant tak och liggande panel, får huset en stark formkänsla med mycket attityd. Här bor inte vem som helst!
Vill du veta mer om Villa Kvadrat?
När du känner dig nöjd med utformningen hör du av dig till oss eller väljer sammanfattning och mailar in din förfrågan.
Så hör vi av oss, smart va!
Boka möte
Om du har några frågor om huset, kontakta oss gärna så berättar vi mer!


