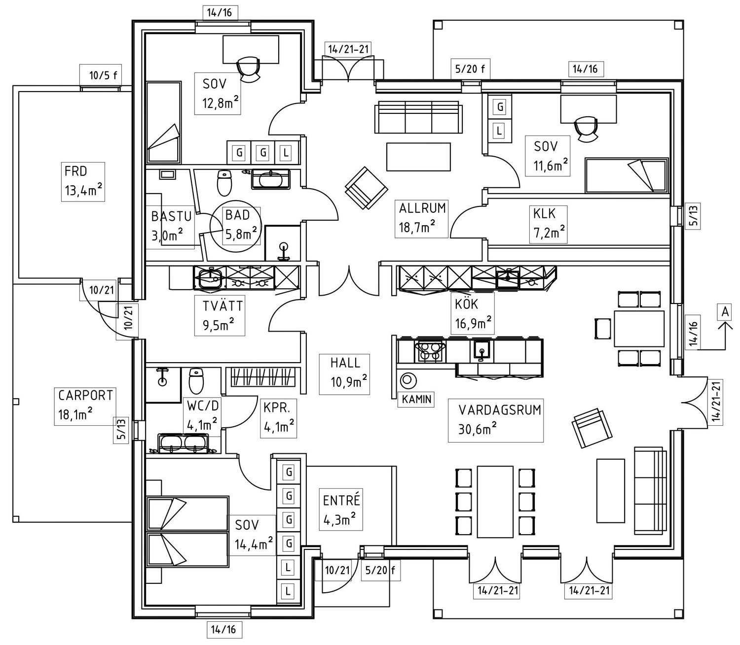
Villa Nyström är ett 1 planshus där man bjuds rakt in i vardagsrummet. Huset har förlängt tak på framsidan och baksidan vilket gör att man får en trevlig uteplats på båda sidorna.
Typ
1 planshus
Boyta
162 m2
Byggyta
242 m2
Sovrum
3 st
Badrum
2 st
Kök
1 st
Prata med en husrådgivare
Vi hjälper dig hela vägen – från idé till färdigt hus. Vi återkommer inom 24h.
Liknande referenshus

Inspireras av ett hem som redan byggts och se hur planlösning, stil och vardagsfunktion kan komma till liv.
- 2 planshus
- 186 m2
- 5 sovrum

Inspireras av ett hem som redan byggts och se hur planlösning, stil och vardagsfunktion kan komma till liv.
- 2 planshus
- 186 m2
- 4 sovrum

Inspireras av ett hem som redan byggts och se hur planlösning, stil och vardagsfunktion kan komma till liv.
- 2 planshus
- 190 m2
- 4 sovrum








