Villa Dahlstrand
- 2 planshus
- 186 m2
- 4 sovrum
- 2 badrum
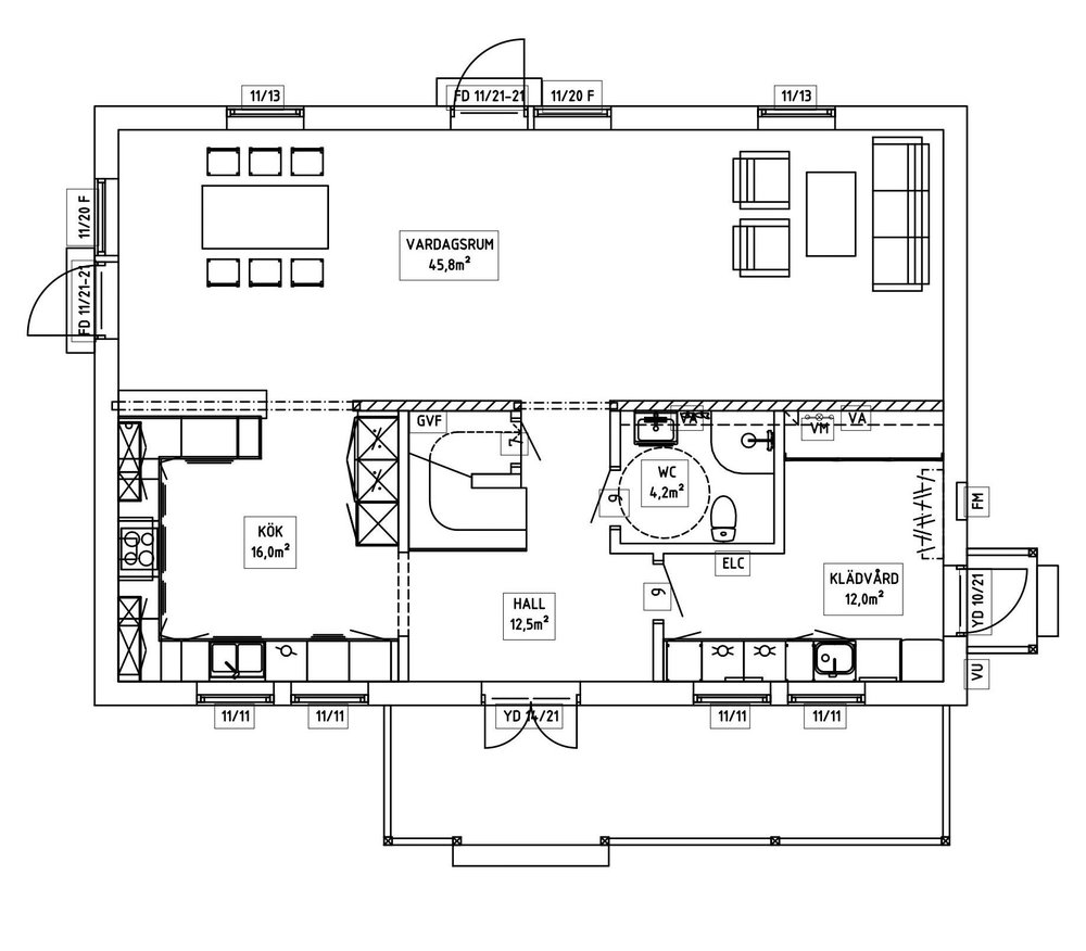
Villa Dahlstrand är ett bra planerat hus med fokus på stora sällskapsytor. Fönsterdörrarna på baksidan leder ut till en stor altan. De fyra sovrummen är placerade på övreplan och sällskapsutrymmen och kök, tvätt på nedre plan.


"Vi älskar vår veranda på framsidan, där kan vi sitta året runt och den ger huset en välkomnade känsla"



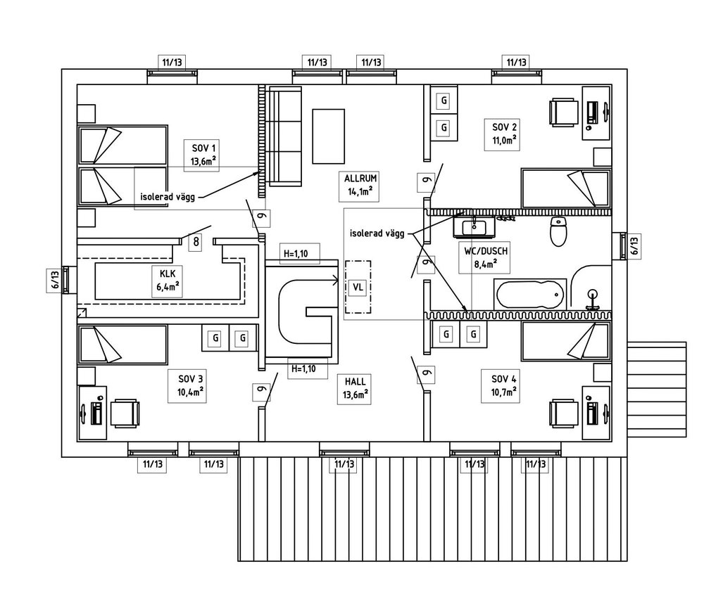
Planlösning
När man kommer in i huset möts man av stora sällskapsytor. Fönster och fönsterdörrar i olika väderstreck skapar ett fint ljusflöde i huset. På övervåning finns husets fyra sovrum. "Master bedroom" med egen walk in closet.

Planlösning av entréplan

Planlösning av överplan




Boka möte
Om du har några frågor om huset, kontakta oss gärna så berättar vi mer!





