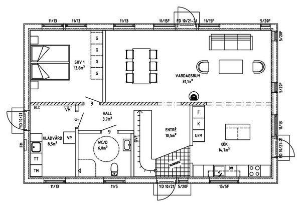
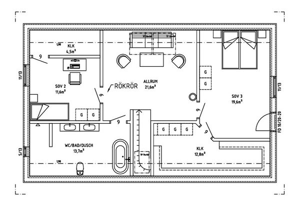
Villa Wejshag
- 1 ½ planshus
- 184 m2
- 3 sovrum
- 2 badrum
Villa Wejshag är ett klassiskt 1 1/2 plans hus. Husmodellen är lättplacerad på de flesta tomter och går även att ställa på andra hållet. Huset har öppen planlösning på entréplan mellan kök och vardagsrum, från kök och vardagsrum kommer man ut på altanen från två håll.






Boka möte
Om du har några frågor om huset, kontakta oss gärna så berättar vi mer!











