Gröna villan i Stöpen
Gröna villan i Stöpen
Pelarbjörksvägen samt Björkebacken i Stöpen
Cirka 10 kilometer norr om Skövde ligger tätorten Stöpen. I Stöpen bor ca 1300 personer och består till största delen av villabebyggelse samt radhus.
Områdena Pelarbjörksvägen samt Björkebacken
Björkebacken och Pelarbjörksvägen ligger knappt 400 meter från centrala Stöpen med butik och skola samt endast 200 meter från en förskola (vår 2023).
Området är placerat i en slänt och omgärdas av skog. Området utgörs till största delen av tomter till nyproduktion av villabebyggelse/radhus men möjliggör även för byggnation av en ny förskola. Förskolan är under byggnation och förväntas stå klar under våren 2023.
Gröna villan på Pelarbjörksvägen
Området angörs från väg 26 via Sätersvägen och sen till Pelar björksvägen.
Bebyggelse
Målet är att skapa ett enhetligt utryck med attraktiva och välplanerade bostadshus. Husen ska ha en boyta på cirka 160 m2 med en naturnära färgsättning och materialval.
En traditionell träpanel kombineras med en modernare fönstersättning och detaljer samt att fasader målas i falurött
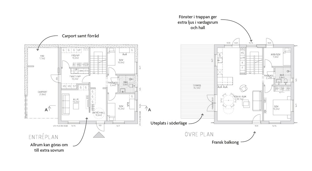
Suterränghusen får en generös planlösning med 5 rum och kök.
Souterränghusen får en generös planlösning med 5 rum och kök.
Från entrén når man ett allrum, tvätt/förråd, badrum samt två sovrum. En groventré finns även i anslutning till tvättstugan. En trappa upp finns kök, vardagsrum, sovrum och badrum. Från kök och vardagsrum når man en balkong/takterass samt uteplats i sydväst. Samtliga hus får tydliga entrér ut mot gatan.
BYA: ca 90m2
BOA: ca 151m2
Tomtstorlek: ca 900m2
Boka möte
Om du har några frågor om huset, kontakta oss gärna så berättar vi mer!







