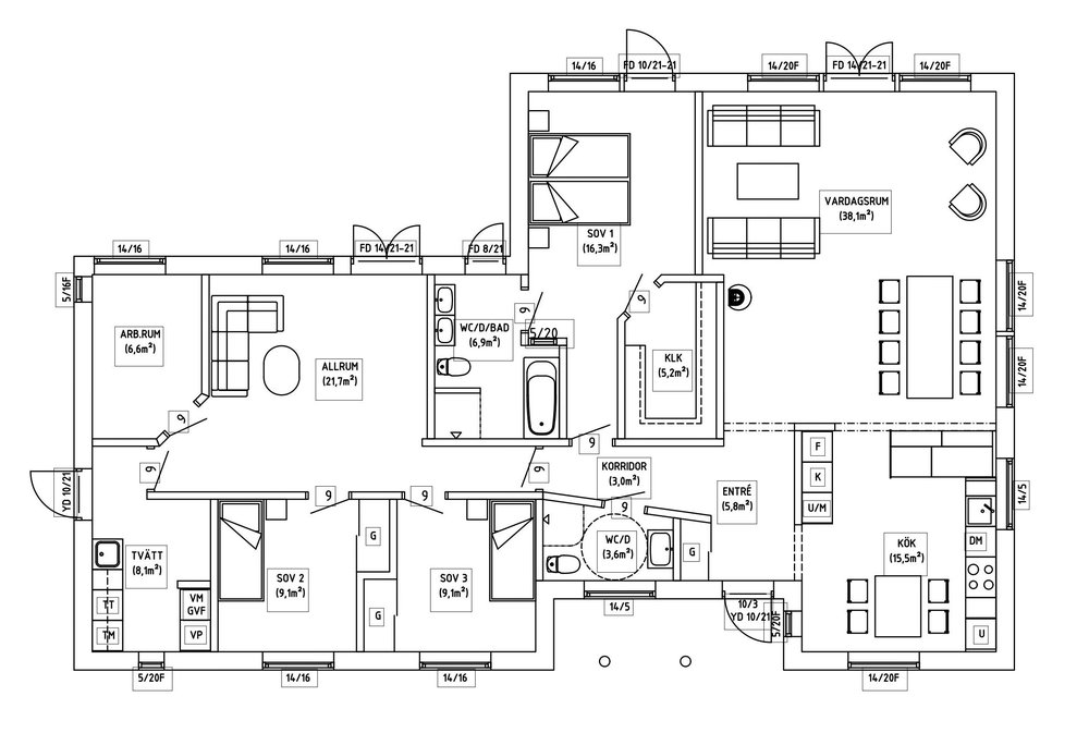
Villa Birgersson
- 1 planshus
- 158 m2
- 4 sovrum
- 2 badrum
Villa Birgersson är ett modernt 1-planshus i funkisstil. Det platta taket ger ett snyggt utseende och kombinationen med både liggande och stående panel ger huset sin rätta karaktär.




Planlösning
Modernt enplanshus med platt tak. Huset är väl planerat med sovrumsdelen i ena delen i huset och sällskapsutrymmen i andra. Stort lyxigt vuxen sovrum med egen walk in closet och eget badrum. Stort vardagsrum som rymmer både soffgrupp och matplats, där det finns plats för många gäster.





Boka möte
Om du har några frågor om huset, kontakta oss gärna så berättar vi mer!





