Villa Skultorp
- 2 planshus
- 162 m2
- 4 sovrum
- 2 badrum
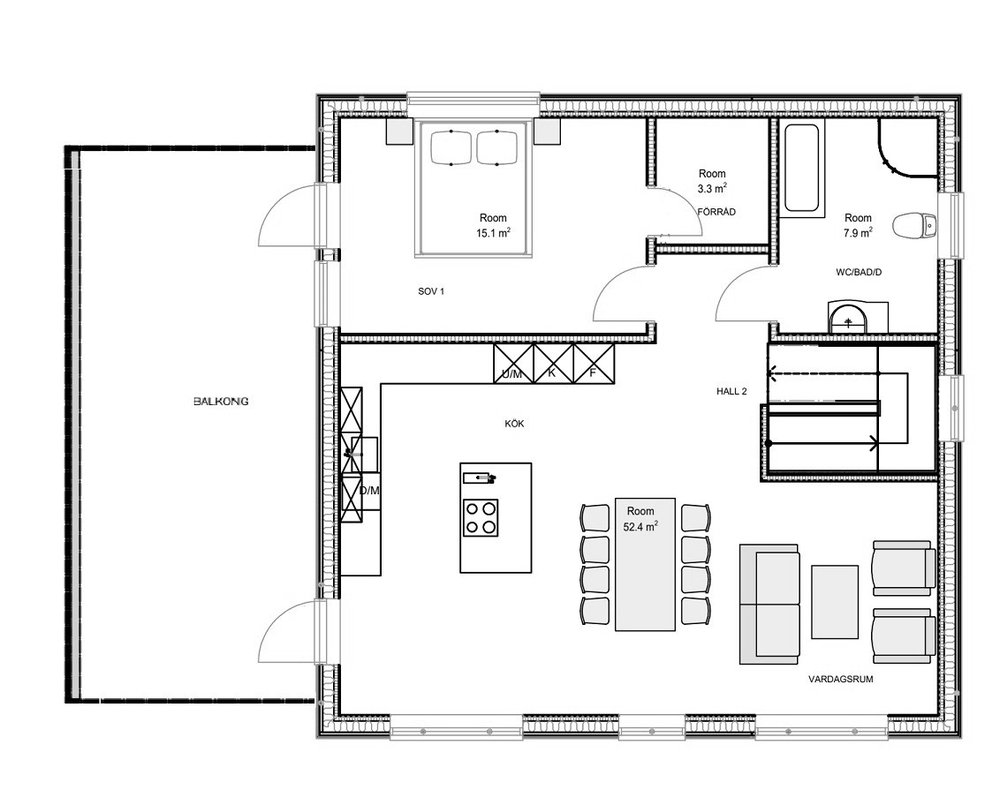
Villa Skultorp är ett modernt 2-planshus i funkisstil. Med huset hjärta, kök och vardagsrum på andra våningsplanen för att ta vara på den härliga utsikten.










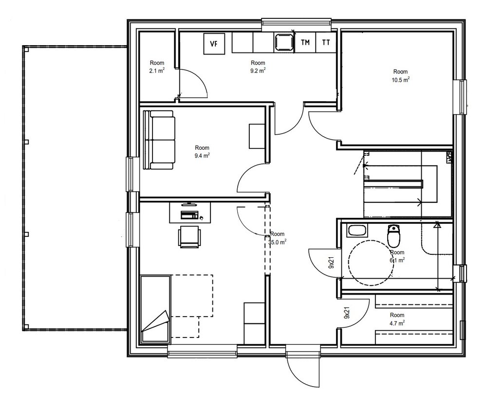
Huset är välplanerat med mycket utrymme för umgänge. På entréplanet finns ett allrum, tre sovrum, badrum och tvätt. Smart förvaring finns både under trappen, hallen och i tvättstugan.
En trappa upp möts du av det stora ljusa rum som består av kök och vardagsrum. Stora fönster ger god utsikt över omgivningarna samt skapar ger rummet en provat känsla då det inte är någon insyn från markplan. På detta plan finns även ett sovrum samt badrum. Perfekt hus för att maximera utsikten.






Boka möte
Om du har några frågor om huset, kontakta oss gärna så berättar vi mer!





